New Change Rooms, City Brothers Football Club Mackay, QLD

Under construction photo

Client: City Brothers Football Club

Scope of Project: Extension and refurbishment of existing change rooms (under construction)

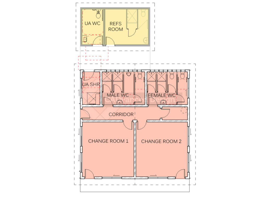
Located on the corner of Bridge rd and Juliet st in Mackay, the City Brothers Vigoro grounds new change rooms, ref's room and toilet facilities are currently under construction. The existing change rooms were not fit for purpose and with the help of a grant we were able to refurbish the existing toilet facilities and build a new set of change rooms, showers and storage.

The existing toilets were refurbished into a ref's room and unisex accessible toilet, while the new change room facilities incorporate male and female showers, a unisex accessible shower and two large change rooms.