Residential Lake Side Renovation Darwin, NT

kitchen3

Client: Private Residence

Scope of Project:

Extension and refurbishment to existing lakeside "Bungalow" style residence

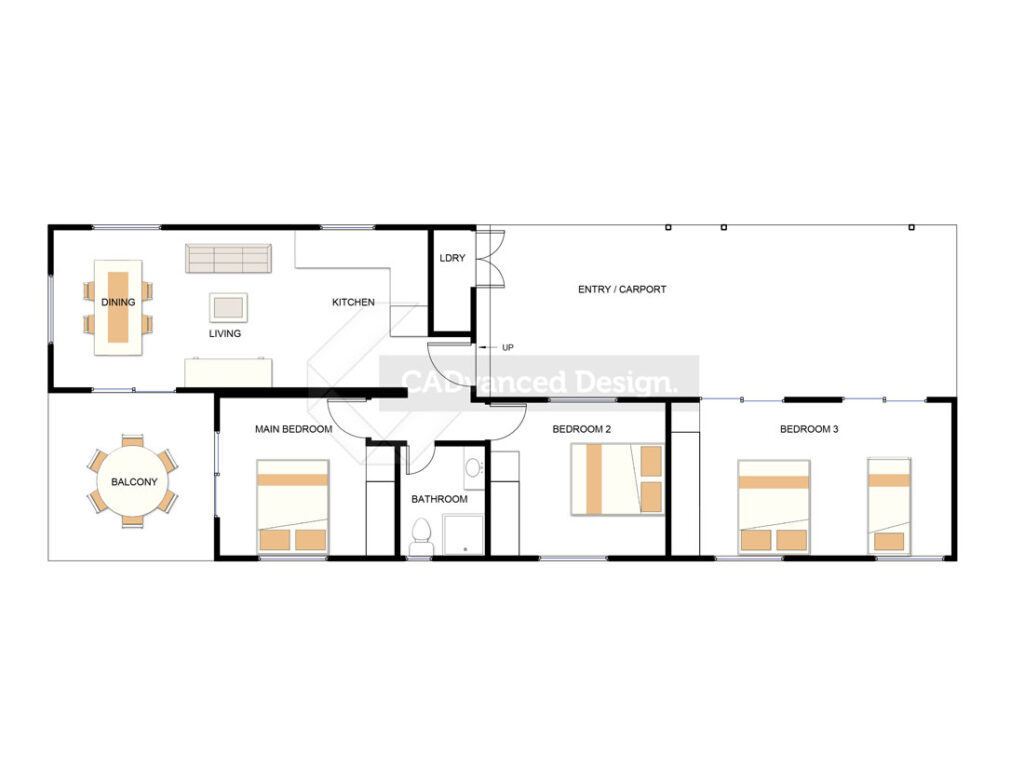
80km from Darwin City, this property is located on the edge of an in-land lake. Originally designed for short term holiday accommodation, the existing Bungalow had all of the basic services needed to suit short term requirements. However, as this was to be the client's main residence it was clear that this Bungalow needed to feel more like a resort style home than a waterfront shack.

By extending the external walls to suit the existing roof line, the main living spaces were opened up to create a larger entertaining area with more water views. The long kitchen island bench draws your attention to the water, while creating a link between the dining room and the lounge. On the other side of the home, the second bedroom was converted into a main bathroom and laundry, which meant that the existing bathroom could be converted into an en-suite.